108 Dearing Drive, South Huron, ON N0M 1T0 (FROM BLUEWATER HIGHWAY TAKE DEARING DRIVE INTO THE SUBDIVISION)

Price : $879,900.00 , MLS®# : X12780618

Description

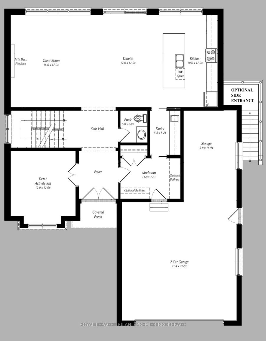
TO BE BUILT:Welcome to Grand Bend's newest subdivision, Sol Haven! Just steps to bustling Grand Bend main strip featuring shopping, dining and beach access to picturesque Lake Huron! Hazzard Homes presents The Saddlerock, featuring 2811 sq ft of expertly designed, premium living space in desirable Sol Haven. Enter into the front doors into the spacious foyer through to the bright and open concept main floor featuring Hardwood flooring throughout the main level; staircase with black metal spindles; generous mudroom, kitchen with custom cabinetry, quartz/granite countertops, island with breakfast bar, and butlers pantry with cabinetry and granite/quartz counters; expansive bright great room with 7' windows/patio slider across the back; and bright main floor den/office. The upper level boasts 4 generous bedrooms and three full bathrooms, including two bedrooms sharing a "jack and Jill" bathroom, primary suite with 5- piece ensuite (tiled shower with glass enclosure, stand alone tub, quartz countertops, double sinks) and walk in closet; and bonus second primary suite with its own ensuite and walk in closet. Convenient upper level laundry room and 2 car garage with additional storage space. Other standard features include: Hardwood flooring throughout main level, 9' ceilings on main level, poplar railing with black metal spindles, under-mount sinks, 10 pot lights and $1500 lighting allowance, rough-ins for security system, rough-in bathroom in basement, A/C, paver stone driveway and path to front door and more! Other lots and plans to choose from. Lots of amenities nearby including golf, shopping, LCBO, grocery, speedway, beach and marina.

Location Description

FROM BLUEWATER HIGHWAY TAKE DEARING DRIVE INTO THE SUBDIVISION

Property Details
  • Community: Stephen
  • Property Type: Vacant/Residential Freehold
  • Bedrooms: 4
  • Bath: 4
  • Garages: Attached
  • Annual Property Taxes : $ 0
Building Features
  • Foundation Type: Poured Concrete
  • Counstruction Material : Brick-Vinyl Siding
  • Total Parking Space : 4
  • Parking Type : Attached
Building Features
  • Heating : Forced AirGas
  • Sewer : Sewer ,
Land (Lot Features)
  • Frontage: 49.86 sq.ft
  • Land Depth: 109.91sq.ft

Listing Contracted With: ROYAL LEPAGE TRILAND PREMIER BROKERAGE